kamieński, Wolin, Kołczewo, Zwycięstwa
Na sprzedaż 67 urokliwych działek budowlanych na osiedlu ekologicznym przy polu golfowym w Kołczewie, obok Wolina.
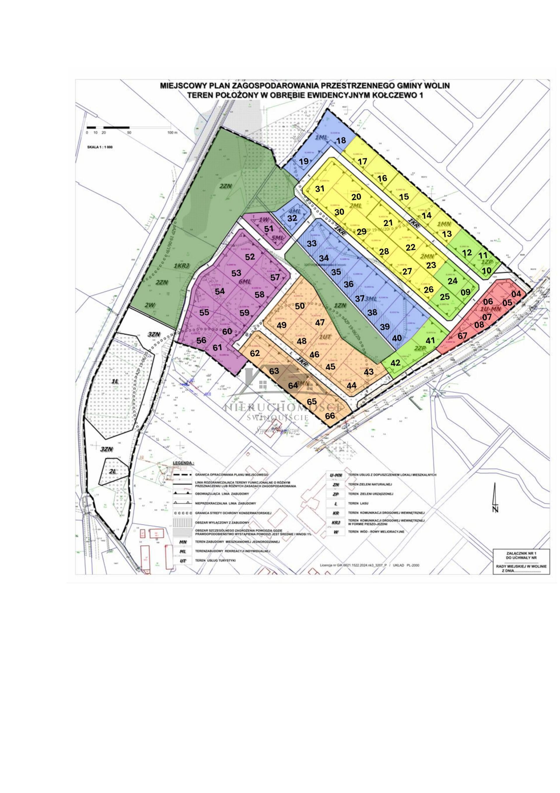
Cena dotyczy działki nr 8 na mapce - 452m2 x 325 zł/m2 - 174 300 zł
Obowiązuje Miejscowy Plan Zagospodarowania
Możliwość zabudowy do 30% powierzchni działki
Media na działce : prąd, woda, kanalizacja
Położenie działek od 3m nad poziomem morza do nawet 9m
Duże działki, posiadające częściowe zalesienie i ciekawe ukształtowanie terenu pozwala na poczucie przestrzeni oraz intymności wraz z malowniczymi widokami.
8 minut rowerem do plaży nad morzem, lub chwilka nad jezioro w Kołczewie
Bezpośrednie sąsiedztwo pola golfowego Amber Baltic Golf Club - do którego dajemy gratis roczne członkostwo po zakupie działki.
Otulina Wolińskiego Parku Narodowego, liczne ścieżki rowerowe, biegowe oraz przestrzeń na długie spacery w naturze, na jeziorze możliwość wędkowania
Wolne działki : 6,7,8,13,20,22,23,24,25,26,27,28,29,30,31,33,35,36,37,38,39,40,41,42,43,44,45,46,47,48,49,50,51,61,62,63,64,65,67
Dostępność może się zmienić z dnia na dzień, proszę pytać o aktualną mailowo lub telefonicznie - 502 818 509
Ceny od 300zł/m2 brutto - najtańsza działka od 174 300zł do 600 000
Wielkość działek od 415m2 do 1536 m2
Na mapce z kolorami pozaznaczane są numery działek wraz z wielkością oraz ceną za m2
Golf Sea Park
Jeśli szukasz spokoju, blisko morza, w otoczeniu unikatowej przyrody i chronionych gatunków ptaków – to zapraszamy do zakupu działki z naszej najnowszej oferty. Wymarzony dom dla siebie możesz mieć w cenie zbliżonej do apartamentu nad morzem!
Golf Sea Park to wyjątkowa inwestycja zlokalizowana na terenie pełnym naturalnego, przyrodniczego piękna. Szanujemy przyrodę, stąd całe otoczenie to część obszaru Natura 2000, który chroni unikalne siedliska przyrodnicze oraz różnorodne gatunki zwierząt, szczególnie ptaków.
Zalety InwestycjiGolf Sea Park oferuje nie tylko piękne widoki i bliskość natury, ale także spokój i bezpieczeństwo. Działki mają od 450 do 1300 mk. Ważne jest ich planowane uzbrojenie. Wkrótce pojawią się przyłącza prądu, w fazie projektu jest także woda i kanalizacja. Oznacza to, iż teren będzie w pełni uzbrojony, co jest niezwykle rzadką możliwością w tak bliskim otoczeniu przyrody.
Golf Sea Park to wyjątkowa inwestycja zlokalizowana na terenie pełnym naturalnego, przyrodniczego piękna. Szanujemy przyrodę, stąd całe otoczenie to część obszaru Natura 2000, który chroni unikalne siedliska przyrodnicze oraz różnorodne gatunki zwierząt, szczególnie ptaków.
Teren bezpośrednio sąsiaduje z najstarszym polem golfowym w Polsce (30 lat historii polskiego golfa), zajmującym 66ha malowniczych terenów przy Parku Narodowym. Na obszarze „Amber Baltic Golf znajdują się: 18-dołkowe pole golfowe Amber (Championship, Par 72), 9-dołkowe pole golfowe Baltic (Executive, Par 28) oraz pole treningowe (Driving Range), Chipping Area, Pitching Area, 2 Putting Greens. Wszystko to sąsiaduje bezpośrednio z proponowaną inwestycją.
Inwestycja znajduje się niemal na granicy Wolińskiego Parku Narodowego, oferując mieszkańcom dostęp do nieskazitelnej natury, z dala od zgiełku miejskiego. Jest też wymarzonym miejscem na emeryturę dla wielu zainteresowanych, a już obecnie wspaniałym terenem dla pieszych i rowerowych wędrówek.
Park Narodowy obejmuje obszar 10 937 ha, w tym różnorodne krajobrazy jak klify, lasy, liczne jeziora oraz unikalne siedliska, które są też integralną częścią tej inwestycji. Mieszkańcy mogą cieszyć się widokami rzadkich gatunków zwierząt, jak chroniony orzeł bielik.
Sąsiedztwo pola golfowego
Amber Baltic Golf Club, bezpośrednio sąsiaduje z Golf Sea Park. To najstarsze pole golfowe w Polsce, znane z organizacji międzynarodowych turniejów. Klub oferuje możliwość wykupienia członkostwa oraz uzyskania tzw. zielonej karty, co umożliwia korzystanie w pełni ze wszystkich pól golfowych – takie „prawo jazdy” na golfa. Dla mieszkańców osiedla jest dostępne na wyciągnięcie ręki.
Otoczenie
Golf Sea Park jest otoczony malowniczymi trasami wycieczkowymi, idealnymi do pieszych wędrówek, rowerowych wycieczek czy nordic walking. Kołczewo, gdzie znajduje się inwestycja, to spokojna miejscowość leżąca w pasie nadmorskim z bogatą historią – nad jeziorem można znaleźć pozostałości grodziska Słowian z XII wieku a pierwsze ślady osadnictwa datowane są na okres kultury łużyckiej i epoki brązu (1400 r. p.n.e – 400 r. p.n.e). W miejscowości znajdują się obecnie sklepy, ośrodek zdrowia, szkoła wraz z zapleczem sportowym a także restauracja i lokalna wędzarnia ryb.
Bliskość Międzyzdrojów, Świnoujścia, Kołobrzegu pozwala mieszkańcom na korzystanie z atrakcji tych „Pereł Bałtyku”, takich jak baza spa, najlepsze restauracje, organizowane konferencje, koncerty, wydarzenia kulturalne, a także nowoczesne mola, szerokie plaże i dobrze rozwiniętą infrastrukturę żeglarsko – morską.
Woliński Park Narodowy
To miejsce, gdzie można spotkać rzadkie gatunki ptaków drapieżnych, jak bielik oraz żubry, które żyją w specjalnym rezerwacie pokazowym. Warto też wspomnieć o Jeziorze Turkusowym, które swoją barwę zawdzięcza rozpuszczonym w wodzie związków wapnia, przyciągając turystów z całego kraju.
Morze
Bliskość Morza Bałtyckiego to kolejny atut inwestycji. W okolicy znajdują się plaże o najwyższej czystości, regularnie nagradzane certyfikatem Błękitna Flaga. Najbliższa plaża to znajduje się na wschód od inwestycji do którego prowadzi nowo wybudowana ścieżka pieszo-rowerowa, zejście wytyczone jest na skraju Wolińskiego Parku Narodowego, a na miejscu dla zmotoryzowanych dostępny jest duzy leśny parking. Plaża z uwagi na swoją lokalizację zachowana jest w bardzo naturalnym – dzikim charakterze wśród pięknych krajobrazów, z dużą nutą spokoju – oddalona od większych miejscowości i natłoku turystów.
Wellness + SPA
W pobliżu znajdują się liczne obiekty SPA (Bagiński Spa, Aurora, Marena Wellnes&Spa, Gołębiewski Pobierowo, LineaMare&Irena Eris Pobierowo), które oferują szeroki wachlarz zabiegów leczniczych i relaksacyjnych. W zaledwie kilka minut od Golf Sea Park można dojechać do renomowanego salonu Wellnes i skorzystać zabiegów borowinowych, solankowych czy masaży.
Na terenie inwestycji przewidziany jest również basen zewnętrzny oraz sauny – dostępne tylko dla właścicieli nieruchomości.
Jedzenie & certyfikaty
Okolica obfituje w restauracje oferujące lokalne specjały, w tym świeże ryby z bałtyckich wód. Szczególnie polecana jest restauracja Papillon w Międzyzdrojach, która cieszy się dużym uznaniem wśród mieszkańców i turystów. Wokół znajdują się także małe lokale z wędzarniami, gdzie można spróbować wędzonych ryb przygotowywanych na miejscu, co dodatkowo wzbogaca kulinarną ofertę regionu. Region, w którym znajduje się Golf Sea Park , otrzymał liczne certyfikaty unijne potwierdzające wysoką jakość środowiska naturalnego oraz zrównoważony rozwój. Przykładem mogą być certyfikaty obszaru Natura 2000, które chronią rzadkie gatunki i siedliska, takie jak wydmy nadmorskie czy starodrzewy w Wolińskim Parku Narodowym. Dodatkowo, plaże w regionie mogą pochwalić się certyfikatem Błękitnej Flagi, przyznawane spełniającym najwyższe standardy czystości. Co więcej, lokalne specjały, takie jak śledź bałtycki czy wędzona flądra, otrzymały certyfikaty jakości i są szeroko chwalone wśród konsumentów, również spoza naszego kraju.
Treść niniejszego ogłoszenia nie stanowi oferty handlowej w rozumieniu Kodeksu Cywilnego oraz może ulec zmianie wszystkie informacje odnośnie dodatkowych opłat uzyskasz po kontakcie z agentem.
Numer licencji PRFN : 31789
Pośrednik Szymon Błażejczyk jest objęty obowiązkowym ubezpieczeniem OC w PZU, nr polisy : PON 00013578
Sent from IMO for real estate brokers.
